In zahlreichen Telefonaten mit Frau Benedikter und Frau Schaller von der EnBW wurden die Bedingungen für den Kauf festgelegt. Die EnBW machte uns einen äußerst fairen Preis, zumal die Abrisskosten gespart werden konnten. Auch beim zuerst geplanten Haus-Stromanschluss für den Turm kam uns die EnBW entgegen. Wir entschlossen uns dann aber doch für die einfachere Lösung, nämlich den Stromanschluss an unser Wohnhaus vom Garten aus. Die Zeit bis zum Notartermin nutzten wir schon mal zum Ideen sammeln, Pläne erstellen und zur Sensibilisierung der zuständigen Stellen für den Umbau. Als dann der Trafo von der EnBW ausgebaut wurde, konnten wir einen ersten Blick in das Innere des Turms werfen.
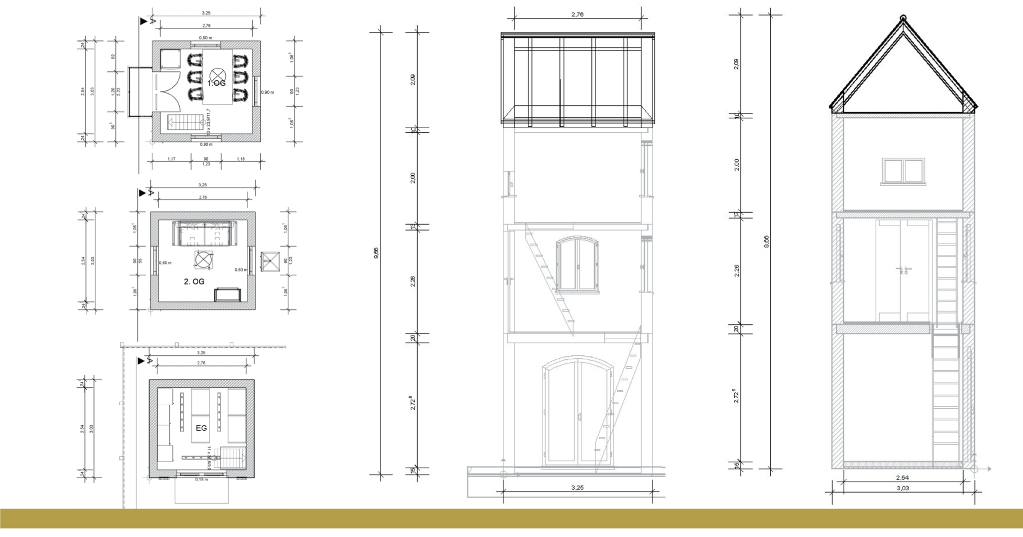
Jetzt wurden die Pläne konkretisiert, im EG sollte eine Lagerraum für Gartengeräte, im 1. OG ein Aufenthaltsraum und durch das Einbauen einer Zwischendecke im 2. OG ein Ruheraum entstehen. Außerdem wollten wir die oberste Betondecke entfernen um den Dachspitz für das 2. OG mit zu benutzen.
Viele Freunde, Bekannte und Verwandte waren ebenfalls von unserer Idee angetan und signalisierten ihre Mithilfe. Besonders unser Onkel, Anton Maier, der zukünftig als „Bauleiter“ fungierte! Er hatte auch sofort den Vorschlag parat, eventuell Bauteile aus dem geplanten Abriss von Kasernengebäuden auf dem ehemaligen Fliegerhorst- Gelände zu nutzen. Tatsächlich wurden wir dort fündig. Sehr gut erhaltene Segmentbogenfenster, eine doppelflügelige Balkontür, ein wunderschöne zweiflüglige Eingangstür aus Holz, Pflastersteine vor dem ehemaligen Unteroffiziersheim, Fenstersimse aus Marmor, Deckenlampen mit Neonröhren, diverse Elektroteile und ein Strom- Verteilerkasten. Zuerst mussten wir aber fragen, schließlich wollten wir die Sachen ja nicht stehlen. Als dann Thomas Mack, als örtlicher Zuständiger des Zweckverbandes Interkommunales Gewerbegebiet Landkreis Günzburg, uns die Erlaubnis zum Ausbau erteilte, und den Preis nannte (z.B. 10 Euro für die Eingangstür), konnten wir nicht mehr widerstehen.
Zusammen mit unserem Gartenfreund, Stefan Sket, wurden die Teile ausgebaut und an einem überdachten Platz hinter unserer Garage zwischengelagert.
Dann endlich der Notartermin! Am 10. März 2014 wurde mit Frau Benedikter von der EnBW beim Notar in Günzburg der Kaufvertrag unterschrieben.
Bereits einige Tage danach setzten wir den Leipheimer Bürgermeister, Christian Konrad von unseren geplanten Umbaumaßnahmen in Kenntnis und reichten beim Bauamtsleiter Jürgen Mössle am 24. 3. 2014 die Pläne zur Genehmigung ein. Beide teilten sofort unsere Begeisterung und zeigten uns, wie wir sehr unbürokratisch, aber immer offiziell und rechtlich einwandfrei, die Maßnahme durchführen können. Eine Voraussetzung war das Einverständnis des direkten Nachbars. Die Nachbarn war sofort einverstanden, nachdem wir ihnen die Pläne gezeigt hatten.
Villa Ampere
Wißmannstraße 9
89340 Leipheim
Deutschland
Familie Zachai
Wißmannstraße 7
89340 Leipheim
Deutschland
Tel. +49 8221 357435
Mobil +49 1525 4244750
E-Mail: info(@)villaampere.de
Facebook: facebook.com/villaampere



