Jetzt noch das Gerüst reinigen und dann so schnell wie möglich abtransportieren. Beim Abtransport am 18. August waren dann Alfred Zey (Lebensgefährte meiner Schwester) und sein Sohn Jakob behilflich.
Nachdem das Gerüst weg war, wurde mit Stefan und Anton die Außenfläche gesäubert und der ganze Bauschutt entfernt. Anton hat dabei gleich noch Unebenheiten bei der Pflasterung beseitigt und die Randsteine (Granitquader) für die Fläche, die als Bienenweide angelegt werden soll, verlegt.
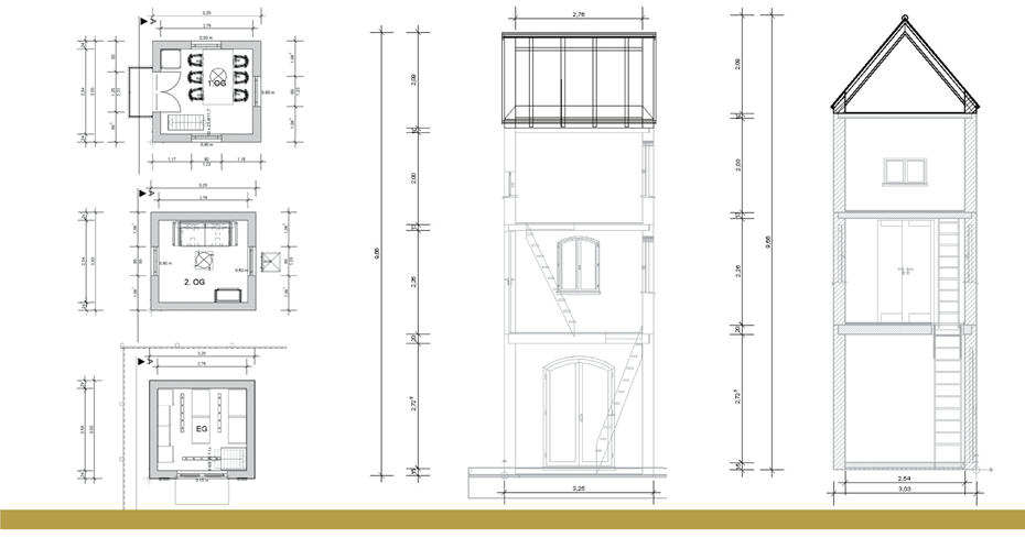
Der Endspurt begann! Als Termin für die Fertigstellung hatten wir den 31. August gesetzt. Die Innenwände wurden verputzt, die Drähte für den Elektroanschluss wurden eingezogen und alles angeschlossen, die Wände gestrichen und der Bretterboden verlegt. In die Balkendecke wurde noch die LED-Beleuchtung, die als Grundbeleuchtung für das 1. und 2. OG dienen sollte, eingebaut.
Ohne die Unterstützung durch meine Frau Sigrid, insbesonders beim Innenausbau, beim Streichen und beim Einrichten wäre das Ganze allerdings nicht zu schaffen gewesen.
Zum Schluss wurden dann noch Außenlampen von Dieter gefertigt (dabei fanden die Glas-Isolatoren aus dem Container der EnBW ihre Verwendung), das Sofa und die Kommode in das 2. OG transportiert (musste vor dem Treppeneinbau gemacht werden, weil sonst der Durchlass zu klein war), die Treppen gefertigt und eingebaut und der Boden des Erdgeschosses gestrichen.
Überraschenderweise kam dann noch ein Anruf von der Bezirksstelle Langenau der EnBW, mit dem Hinweis, dass einige alte Elektroteile für uns bereit stehen. Ein Amperemessgerät verwendeten wir als Deko außen. Ein weiteres Amperemessgerät, 2 alte Stromzähler und 2 Voltmesser wurden innerhalb montiert. Ein alter Widerstandsmesser wurde in einen Eichenholzklotz eingebaut.
Als wir dann noch von unserem „Bauleiter“ Anton eine große Wurzel als Kunstwerk für die Außenfläche geschenkt bekamen, war alles perfekt.
Villa Ampere
Wißmannstraße 9
89340 Leipheim
Deutschland
Familie Zachai
Wißmannstraße 7
89340 Leipheim
Deutschland
Tel. +49 8221 357435
Mobil +49 1525 4244750
E-Mail: info(@)villaampere.de
Facebook: facebook.com/villaampere